Vai al contenuto
  • Home
  • Vendite
  • Affitti
  • Contatti
  • Stima online
  • Vendi in Open Market
Menu
  • Home
  • Vendite
  • Affitti
  • Contatti
  • Stima online
  • Vendi in Open Market

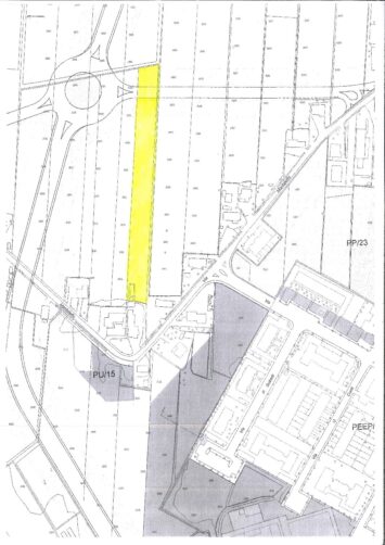
Terreno agricolo 5.700 mq con capannone e utenze

Via Montaletto, 104 - Madonnina, Cesenatico

  • 5698mq

€ 75.000

Occasione
terreno
capannone
capannone
capannone
capannone
capannone
Documenti
  • planimetria
  • planimetria
  • Rif: MS01
  • Prezzo: € 75.000
  • Superficie: 5698mq
  • Tipo di immobile: Economico
  • Locali: 1
  • Piano: 0

Caratteristiche

  • Ingresso indipendente

Caratteristiche energetiche

Dettagli

TERRENO AGRICOLO CON CAPANNONE – MADONNINA DI CESENATICO (FC)

A pochi minuti dal centro di Cesenatico, in posizione strategica e facilmente accessibile dalle principali vie di comunicazione, proponiamo in vendita terreno agricolo di circa 5.700 mq.

La proprietà è arricchita dalla presenza di un capannone di circa 40 mq, regolarmente condonato, completamente da ristrutturare, ideale come deposito attrezzi, ricovero mezzi o punto di appoggio per attività agricole.

Caratteristiche principali:

  • Superficie terreno: circa 5.700 mq

  • Accesso diretto da strada

  • Pozzo

  • Allacciamenti a luce e acqua già presenti

  • Capannone esistente da riqualificare

La posizione rende il terreno particolarmente interessante sia per uso agricolo che per attività hobbistiche o investimento. La vicinanza alle principali arterie stradali garantisce comodità negli spostamenti, pur mantenendo un contesto tranquillo e riservato.

Ideale per:

  • Coltivazioni agricole o orto privato

  • Attività agricole o amatoriali

  • Maneggio o ricovero cavalli
  • Apicoltura

  • Deposito attrezzi e mezzi agricoli

  • Investimento a medio-lungo termine

Ottima opportunità per chi cerca uno spazio versatile, facilmente accessibile e con servizi già disponibili.

Per informazioni: 348 9508462 Marika

Le presenti informazioni non costituiscono elemento contrattuale

€ 75.000

Richiedi informazioni

VENDESI
Madonnina
Terreno agricolo 5.700 mq con capannone e utenze

TERRENO AGRICOLO CON CAPANNONE – MADONNINA DI CESENATICO (FC)

A pochi minuti dal centro di Cesenatico, in posizione strategica e facilmente accessibile dalle principali vie di comunicazione, proponiamo in vendita terreno agricolo di circa 5.700 mq.

La proprietà è arricchita dalla presenza di un capannone di circa 40 mq, regolarmente condonato, completamente da ristrutturare, ideale come deposito attrezzi, ricovero mezzi o punto di appoggio per attività agricole.

Caratteristiche principali:

  • Superficie terreno: circa 5.700 mq

  • Accesso diretto da strada

  • Pozzo

  • Allacciamenti a luce e acqua già presenti

  • Capannone esistente da riqualificare

La posizione rende il terreno particolarmente interessante sia per uso agricolo che per attività hobbistiche o investimento. La vicinanza alle principali arterie stradali garantisce comodità negli spostamenti, pur mantenendo un contesto tranquillo e riservato.

Ideale per:

  • Coltivazioni agricole o orto privato

  • Attività agricole o amatoriali

  • Maneggio o ricovero cavalli
  • Apicoltura

  • Deposito attrezzi e mezzi agricoli

  • Investimento a medio-lungo termine

Ottima opportunità per chi cerca uno spazio versatile, facilmente accessibile e con servizi già disponibili.

Per informazioni: 348 9508462 Marika

€ 75.000
rif. MS01

Torelli Agenzia Immobiliare

  • Viale Trento 29/A Cesenatico
  • 47042 Cesenatico (FC)
  • 0547 400126

Accedi

Link utili

  • Privacy e Cookie Policy
  • Revoca consensi
  • Privacy Tools
  • Sitemap

Seguici sui social!

Facebook Twitter Pinterest Instagram Linkedin Youtube Asterisk
  • © Torelli Agenzia Immobiliare
  • P.IVA IT04446840409
  • Sito realizzato con Domyno Accelerator
Utilizziamo i cookie
Utilizziamo i cookie per le funzionalità fondamentali del sito e per assicurarti la migliore esperienza. Il sito utilizza cookie di terze parti per statistiche anonime di utilizzo. Se desideri sapere di più sui cookie che utilizziamo e su come gestirli, puoi accedere alla Cookie Policy

ACCETTA TUTTIRIFIUTASCEGLICHIUDI
Panoramica sulla privacy

This website uses cookies to improve your experience while you navigate through the website. Out of these cookies, the cookies that are categorized as necessary are stored on your browser as they are essential for the working of basic functionalities of the website. We also use third-party cookies that help us analyze and understand how you use this website. These cookies will be stored in your browser only with your consent. You also have the option to opt-out of these cookies. But opting out of some of these cookies may have an effect on your browsing experience.

Tecnici
Sempre abilitato
I cookie tecnici sono assolutamente indispensabili al sito web per funzionare correttamente. Questi cookie assicurano il funzionamento e la sicurezza di base del sito in maniera anonima. Tra i cookie tecnici vi possono essere anche quelli di performace e analitici di prima parte che non memorizzano dati personali dell'utente.
CookieDurataDescrizione
cookielawinfo-checbox-analytics11 monthsQuesto cookie è impostato dal plug-in di consenso sui cookie GDPR. Il cookie viene utilizzato per memorizzare il consenso dell'utente per i cookie nella categoria "Analytics".
cookielawinfo-checbox-functional11 monthsQuesto cookie è impostato dal plug-in di consenso sui cookie GDPR. Il cookie viene utilizzato per memorizzare il consenso dell'utente per i cookie nella categoria "Funzionali".
cookielawinfo-checbox-others11 monthsQuesto cookie è impostato dal plug-in di consenso sui cookie GDPR. Il cookie viene utilizzato per memorizzare il consenso dell'utente per i cookie nella categoria "Altro.
cookielawinfo-checkbox-advertisement1 yearIl cookie è impostato dal consenso cookie GDPR per registrare il consenso dell'utente per i cookie nella categoria "Pubblicità".
cookielawinfo-checkbox-analytics1 yearSet by the GDPR Cookie Consent plugin, this cookie is used to record the user consent for the cookies in the "Analytics" category .
cookielawinfo-checkbox-functional1 yearThe cookie is set by the GDPR Cookie Consent plugin to record the user consent for the cookies in the category "Functional".
cookielawinfo-checkbox-necessary11 monthsQuesto cookie è impostato dal plug-in di consenso sui cookie GDPR. Il cookie viene utilizzato per memorizzare il consenso dell'utente per i cookie nella categoria "Necessari".
cookielawinfo-checkbox-others1 yearSet by the GDPR Cookie Consent plugin, this cookie is used to store the user consent for cookies in the category "Others".
cookielawinfo-checkbox-performance11 monthsQuesto cookie è impostato dal plug-in di consenso sui cookie GDPR. Il cookie viene utilizzato per memorizzare il consenso dell'utente per i cookie nella categoria "Performance".
elementorneverThis cookie is used by the website's WordPress theme. It allows the website owner to implement or change the website's content in real-time.
tc_mtm_vars1 yearUtilizzato dal sistema per individuare le campagne pubblicitarie di origine.
tc_mtm_vars_last1 yearUtilizzato dal sistema per individuare l'ultima campagna pubblicitaria di origine.
viewed_cookie_policy11 monthsIl cookie è impostato dal plug-in GDPR Cookie Consent e viene utilizzato per memorizzare se l'utente ha acconsentito o meno all'uso dei cookie. Non memorizza alcun dato personale.
_GRECAPTCHA5 months 27 daysQuesto cookie è impostato da Google. Oltre a determinati cookie standard di Google, reCAPTCHA imposta un cookie necessario (_GRECAPTCHA) quando viene eseguito allo scopo di fornire la sua analisi dei rischi.
_pk_id.*.*1 MonthCookie di prima parte per statistiche di utilizzo che raccoglie dati anonimi e in forma aggregata per statistiche riservate agli amministratori del sito
_pk_ses.*.*1 HourCookie di prima parte per statistiche di utilizzo che raccoglie dati anonimi e in forma aggregata per statistiche riservate agli amministratori del sito
__cfduid1 monthIl cookie viene utilizzato dai servizi cdn come CloudFare per identificare i singoli client dietro un indirizzo IP condiviso e applicare le impostazioni di sicurezza su base client. Non corrisponde a nessun ID utente nell'applicazione Web e non memorizza alcuna informazione di identificazione personale.
Funzionali
I cookie Funzionali vengono usati per fornire funzionalità aggiuntive per il sito web come la condivisione dei contenuti nei social, la raccolta di feedback e altre funzionalità di terze parti.
Performance
I cookie di Performance vengono utilizzati per analizzare gli indici di prestazione del sito e ci aiutano a migliorare l’esperienza degli utenti.
Analitici
I cookie Analitici vengono utilizzati per capire come gli utenti interagiscono con il sito. Aiutano a fornire informazioni sul numero di visitatori, frequenza di rimbalzo, origine del traffico, ecc.
Pubblicitari
I cookie pubblicitari vengono utilizzati per fornire agli utenti pubblicità e campagne marketing rilevanti per loro. Questi cookie tracciano gli utenti attraverso più siti per raccogliere informazioni e mostrare pubblicità personalizzate.
CookieDurataDescrizione
fr3 monthsFacebook sets this cookie to show relevant advertisements to users by tracking user behaviour across the web, on sites that have Facebook pixel or Facebook social plugin.
_fbp3 monthsThis cookie is set by Facebook to display advertisements when either on Facebook or on a digital platform powered by Facebook advertising, after visiting the website.
Altri
Gli Altri cookie sono tutti quelli che non rientrano nelle altre categorie o che devono essere analizzati per essere categorizzati.
Offerto da WebToffee Logo
Manage consent