Villetta a schiera a Sala di Cesenatico – comfort, spazio e tranquillità per la tua famiglia
Se sogni una casa accogliente, funzionale e pronta da vivere, questa villetta a schiera a Sala di Cesenatico è la scelta ideale.
Situata in una zona tranquilla, a breve distanza dai principali servizi e a soli 10 minuti dal mare, offre tutto ciò che serve per una vita serena e ben organizzata.
La disposizione interna:
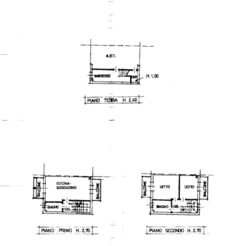
Piano terra: Ingresso indipendente, garage e cantina, perfetti per parcheggio, lavanderia, deposito e hobby.
Primo piano: ampia zona giorno con luminoso soggiorno e cucina, entrambi con accesso diretto al balcone, e un bagno nuovo.
Secondo piano: due spaziose camere da letto con balcone e un bagno.
Piano mansardato: soffitta rifinita in legno, ideale come studio, sala hobby o area relax.
Gli spazi esterni:
Sul retro, un ampio giardino privato di circa 100 mq, ideale per far giocare i bambini in sicurezza e offrire libertà ai tuoi animali domestici. Davanti alla casa, nella corte di proprietà, trovi 2 comodi posti auto.
Perché sceglierla:
Ottimo stato di manutenzione
Ambienti luminosi e ben distribuiti
Zona silenziosa ma comoda ai servizi
Vicinanza al mare
Questa villetta è la soluzione perfetta per una giovane coppia che desidera crescere la propria famiglia in un contesto sereno, senza rinunciare alla vicinanza alla costa e ai comfort della città.
Per informazioni o per prenotare una visita: 333 9000702 Giovanni Agente
Le presenti informazioni non costituiscono elemento contrattuale
Le presenti informazioni non costituiscono elemento contrattuale
Villetta a schiera a Sala di Cesenatico – comfort, spazio e tranquillità per la tua famiglia
Se sogni una casa accogliente, funzionale e pronta da vivere, questa villetta a schiera a Sala di Cesenatico è la scelta ideale.
Situata in una zona tranquilla, a breve distanza dai principali servizi e a soli 10 minuti dal mare, offre tutto ciò che serve per una vita serena e ben organizzata.
La disposizione interna:
Piano terra: Ingresso indipendente, garage e cantina, perfetti per parcheggio, lavanderia, deposito e hobby.
Primo piano: ampia zona giorno con luminoso soggiorno e cucina, entrambi con accesso diretto al balcone, e un bagno nuovo.
Secondo piano: due spaziose camere da letto con balcone e un bagno.
Piano mansardato: soffitta rifinita in legno, ideale come studio, sala hobby o area relax.
Gli spazi esterni:
Sul retro, un ampio giardino privato di circa 100 mq, ideale per far giocare i bambini in sicurezza e offrire libertà ai tuoi animali domestici. Davanti alla casa, nella corte di proprietà, trovi 2 comodi posti auto.
Perché sceglierla:
Ottimo stato di manutenzione
Ambienti luminosi e ben distribuiti
Zona silenziosa ma comoda ai servizi
Vicinanza al mare
Questa villetta è la soluzione perfetta per una giovane coppia che desidera crescere la propria famiglia in un contesto sereno, senza rinunciare alla vicinanza alla costa e ai comfort della città.
Per informazioni o per prenotare una visita: 333 9000702 Giovanni Agente
Le presenti informazioni non costituiscono elemento contrattuale
This website uses cookies to improve your experience while you navigate through the website. Out of these cookies, the cookies that are categorized as necessary are stored on your browser as they are essential for the working of basic functionalities of the website. We also use third-party cookies that help us analyze and understand how you use this website. These cookies will be stored in your browser only with your consent. You also have the option to opt-out of these cookies. But opting out of some of these cookies may have an effect on your browsing experience.
| Cookie | Durata | Descrizione |
|---|---|---|
| cookielawinfo-checbox-analytics | 11 months | Questo cookie è impostato dal plug-in di consenso sui cookie GDPR. Il cookie viene utilizzato per memorizzare il consenso dell'utente per i cookie nella categoria "Analytics". |
| cookielawinfo-checbox-functional | 11 months | Questo cookie è impostato dal plug-in di consenso sui cookie GDPR. Il cookie viene utilizzato per memorizzare il consenso dell'utente per i cookie nella categoria "Funzionali". |
| cookielawinfo-checbox-others | 11 months | Questo cookie è impostato dal plug-in di consenso sui cookie GDPR. Il cookie viene utilizzato per memorizzare il consenso dell'utente per i cookie nella categoria "Altro. |
| cookielawinfo-checkbox-advertisement | 1 year | Il cookie è impostato dal consenso cookie GDPR per registrare il consenso dell'utente per i cookie nella categoria "Pubblicità". |
| cookielawinfo-checkbox-analytics | 1 year | Set by the GDPR Cookie Consent plugin, this cookie is used to record the user consent for the cookies in the "Analytics" category . |
| cookielawinfo-checkbox-functional | 1 year | The cookie is set by the GDPR Cookie Consent plugin to record the user consent for the cookies in the category "Functional". |
| cookielawinfo-checkbox-necessary | 11 months | Questo cookie è impostato dal plug-in di consenso sui cookie GDPR. Il cookie viene utilizzato per memorizzare il consenso dell'utente per i cookie nella categoria "Necessari". |
| cookielawinfo-checkbox-others | 1 year | Set by the GDPR Cookie Consent plugin, this cookie is used to store the user consent for cookies in the category "Others". |
| cookielawinfo-checkbox-performance | 11 months | Questo cookie è impostato dal plug-in di consenso sui cookie GDPR. Il cookie viene utilizzato per memorizzare il consenso dell'utente per i cookie nella categoria "Performance". |
| elementor | never | This cookie is used by the website's WordPress theme. It allows the website owner to implement or change the website's content in real-time. |
| tc_mtm_vars | 1 year | Utilizzato dal sistema per individuare le campagne pubblicitarie di origine. |
| tc_mtm_vars_last | 1 year | Utilizzato dal sistema per individuare l'ultima campagna pubblicitaria di origine. |
| viewed_cookie_policy | 11 months | Il cookie è impostato dal plug-in GDPR Cookie Consent e viene utilizzato per memorizzare se l'utente ha acconsentito o meno all'uso dei cookie. Non memorizza alcun dato personale. |
| _GRECAPTCHA | 5 months 27 days | Questo cookie è impostato da Google. Oltre a determinati cookie standard di Google, reCAPTCHA imposta un cookie necessario (_GRECAPTCHA) quando viene eseguito allo scopo di fornire la sua analisi dei rischi. |
| _pk_id.*.* | 1 Month | Cookie di prima parte per statistiche di utilizzo che raccoglie dati anonimi e in forma aggregata per statistiche riservate agli amministratori del sito |
| _pk_ses.*.* | 1 Hour | Cookie di prima parte per statistiche di utilizzo che raccoglie dati anonimi e in forma aggregata per statistiche riservate agli amministratori del sito |
| __cfduid | 1 month | Il cookie viene utilizzato dai servizi cdn come CloudFare per identificare i singoli client dietro un indirizzo IP condiviso e applicare le impostazioni di sicurezza su base client. Non corrisponde a nessun ID utente nell'applicazione Web e non memorizza alcuna informazione di identificazione personale. |
| Cookie | Durata | Descrizione |
|---|---|---|
| fr | 3 months | Facebook sets this cookie to show relevant advertisements to users by tracking user behaviour across the web, on sites that have Facebook pixel or Facebook social plugin. |
| _fbp | 3 months | This cookie is set by Facebook to display advertisements when either on Facebook or on a digital platform powered by Facebook advertising, after visiting the website. |